您現在的位置:中國農業儀器網 > 技術文章 > 智能人工氣候培養箱各系統介紹
智能人工氣候培養箱各系統介紹
來源: 中國農業儀器網 類別:技術文章 更新時間:2010-05-11 閱讀次
智能人工氣候培養箱是由浙江托普儀器有限公司自行研發生產的智能微電腦人工氣候系統,它具有控制溫度、濕度、光照度和時間等分散系統。每個系統有其特定的運行規律和原理。
RTOP-D智能人工氣候培養箱簡稱為人工氣候室,因為每個參數都能人工控制,具有相當智能化。RTOP-D智能人工氣候培養室有不同的容積大小,最小的如RTOP-260B人工氣候培養室只有260L的容積,而最大的有RTOP-1000D智能人工氣候培養室有1000L體積,是最小容積的近四倍之大。當然價格上面也相差幾萬。因此客戶在選擇人工氣候箱的時候,應該考慮到自己使用這個儀器的真實需求,不要為了追求大小或者省錢等原因,而買了不適合自己的儀器。
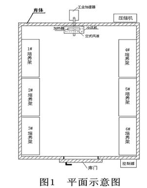
圖 人工氣候箱平面圖
下面我們來具體看下智能人工氣候箱的幾個重點系統介紹:控制系統、濕度系統和溫度系統。
智能人工氣候培養室儀器控制系統:
由本公司自行研制的FPID控制模式的智能微電腦人工氣候室控制系統,具有控溫(冷熱溫控)、控濕(加濕和除濕)、控光(有光或無光照)和時間程控(溫度、濕度和光照按時間程序切換)等功能。
本系統根據國家行業標準JB/T6823-93《生物人工氣候箱技術條件》的要求設計生產。
本系統的溫控采用FPID模糊控制,它將環境溫度、生長室設定溫度、光照強度及除濕狀況等影響生長室溫度的所有影響因素都參與溫度FPID調節,使溫度控制品質幾成完美。該技術處于國內領先水平。
本系統的控濕系統也采用FPID模糊控制,它不僅按照濕度偏差對除濕和加濕進行位式PID控制,而且將制冷狀況引入控濕系統,還將加濕與除濕間相互關系引入控濕系統。
為節能,控溫和控濕時均采用間歇制冷,比傳統的制冷機連續運行方式節能30%以上。
正因為采用了上述復雜而全面的FPID模糊控制技術,使得壓縮機間歇運行及不增加除濕設備的條件下,能達到很高的控溫控濕精度。
本系統具有溫度偏差報警、極限溫度報警和保護。
本系統的電源開關采用帶漏電流保護的三相空氣開關,并裝有缺相保護、壓縮機過載保護、冷風機過載保護。
智能人工氣候培養室儀器濕度系統:
濕度系統由加濕器、除濕器、濕度傳感器和控制系統等組成。其中加濕器采用一臺大功率具有自動加水、自動軟化水功能、產汽量為3kg/h的北京產YC-G630型工業超聲波加濕器,其輸氣管用φ110mm的PVC管通至冷風機出口處,然后均勻地吹向全室。濕度變送器采用精度較高的電容式濕度傳感器。除濕機由本方案中的溫度系統中的壓縮機組—冷風機—加熱器兼任。生長室內的循環風通過冷風機時將空氣中的濕度除去,且降低了溫度,經加熱器加熱,空氣溫度得以回升。由于控制得當,可在除濕的同時保持溫度恒定。
智能人工氣候培養室儀器溫度系統:
溫度系統由加熱器、壓縮機組、冷風機、立式風道、溫度傳感器和控制系統等組成。壓縮機組采用高效的法國美優樂MT36(3匹)全封閉壓縮機(含進口附配件)。冷風機采用國產30m2高效低噪音冷風機。溫度傳感器采用進口(寧波組裝)KL型高精度熱敏電阻,具有精度高、可靠性極高。壓縮機組用支架安裝在室外,并用機罩罩住。冷風機安裝在房門對面的頂板上,冷風機的進口處與位于其下的立式風道相連接,立式風道的進風出在其底部兩側,如圖2所示。加熱器安裝在風道內。
- 【中國農業儀器網】聲明部分文章轉載自其它媒體,轉載目的在于傳遞更多信息,并不代表本網贊同其觀點和對其真實性負責,且不承擔此類作品侵權行為的直接責任及連帶責任。如涉及作品內容、版權和其它問題,請在30日內與本網聯系。
- 上一篇:怎樣才能讓茄子保花保果
- 下一篇:不同型號間光照培養箱的差異化比較

推薦儀器

最近更新儀器

相關技術文章