您現在的位置:中國農業儀器網 > 技術文章 > 恒溫恒濕箱的工作原理(內附恒溫恒濕箱內部結構圖)
恒溫恒濕箱的工作原理(內附恒溫恒濕箱內部結構圖)
來源: http://www.bjpzxcn.cn/ 類別:技術文章 更新時間:2021-08-06 閱讀次
恒溫恒濕箱的工作原理(內附恒溫恒濕箱內部結構圖)
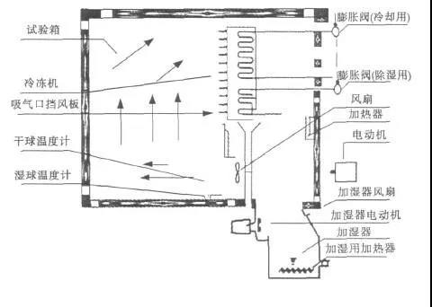
恒溫恒濕箱的工作原理是以模仿自然環境中的高溫、低溫、潮濕、干燥的氣候條件,在其箱體內通過各控制系統相互協作來實現,其原理產生方式主要通過空氣室內空間加熱、制冷、加濕、除濕,通過一系列的系統和組件之間協同作用,就完成了加熱、制冷、加濕、干燥的動作,進而實現實驗過程中的恒溫恒濕環境,總的來說,恒溫恒濕箱由調溫和增濕兩部分組成。各部分的詳細工作原理如下:
1、恒溫恒濕箱的溫度調節原理
恒溫恒濕箱的溫度調節通過箱體內置溫度傳感器,采集數據,經溫度控制器調節,接通空氣加熱單元來實現增加溫度或者調節制冷電磁閥來降低箱體內溫度,以達到控制所需要的溫度。
2、恒溫恒濕箱的濕度調節原理
恒溫恒濕箱的濕度調節是通過體內置濕度傳感器,采集數據,經濕度控制器調節,接通水槽加熱元件,通過蒸發水槽內的水來實現增加箱體內的濕度或者調節制冷電磁閥來實現去濕作用,以達到控制所需要的濕度。
3、恒溫恒濕箱內部結構圖
- 【中國農業儀器網】聲明部分文章轉載自其它媒體,轉載目的在于傳遞更多信息,并不代表本網贊同其觀點和對其真實性負責,且不承擔此類作品侵權行為的直接責任及連帶責任。如涉及作品內容、版權和其它問題,請在30日內與本網聯系。

推薦儀器

最近更新儀器

相關技術文章